Process | Renovation/Addition

Whether you are doing an interior renovation or an addition: we are
here to ensure that the architecture compliments your current home.

Zoning review and on-site measuring

If you are adding an addition we will start with the zoning by-law, reviewing the site’s topography while taking into consideration the neighborhood context and privacy concerns.

We will then send our measuring team to measure and document the existing structure so our drafting team can redraw the existing house into our 3d program.

Architectural blueprint or 3D rendering of a modern house with multiple levels and large windows.
Architectural blueprint of a property with building structures, landscaped areas, and boundary lines on Whitier Crescent.

Initial design meeting

In the initial meeting we discuss in detail what you're looking for in the renovation and/or addition, how you live today and talk how you want to see your space transform. We take the time to get to know you, listen to the pinch points with your current configuration so we can truly understand and then maximize the new design to create your dream home.

We also talk about more practical matters such as structure and technology, so that these elements are integrated into our design. We discuss the budget and the importance of a healthy buffer before demolition begins, as all existing construction comes with its quirks.

architectual Design package

Blacklines, Elevations, and 3D computer generated models

First, we start with black lines (floor plans) when you are happy with these, we move on to the exterior elevations where we incorporate the roof design and if it’s an addition how the new roof ties into the existing roof, where all our point loads end, what the exterior materials and how they tie in, window sizes and all the exterior details that create a complete harmonious aesthetic.

We work in 3D which gives us the capability to look at your home from all angles, providing you with 3D images of all elevations and any unique items that give your home it’s character. We will also show you interior 3D images to help illustrate the ceiling features and how they enhance the overall design and elevate the experience you will have in your home.

Construction drawings and building permit submission

We will convert the design package into permit ready construction drawings. Pulling from our experience working with our developer/builders ensures that no details are missed and that we truly understand which construction details are needed to build out your project without delay or costly errors on site.

We work hand in hand with all the consultants on the project to ensure that we create complete and cohesive construction package that we will submit to the town.

Stamp and Hammer have a vast experience with large and complicated projects, and we know how difficult construction can be. We enjoy being involved throughout the process; answer any questions your contractor might have.

A modern architectural design of a house with large windows, stone and siding exterior, sloped roof, and multiple balconies.
Architectural floor plan of a house showing rooms, garage, and other layouts.
Architectural floor plan of a house with rooms including a bedroom, lounge, terrace, and bathrooms.

Photo realistic renderings and virtual walkthrough

We have an inhouse rendering service and at this stage we offer interior and exterior photo realistic images an interior virtual walkthrough.

Virtual tours accurately and realistically depict what the views from any location in the home will look like once completed.

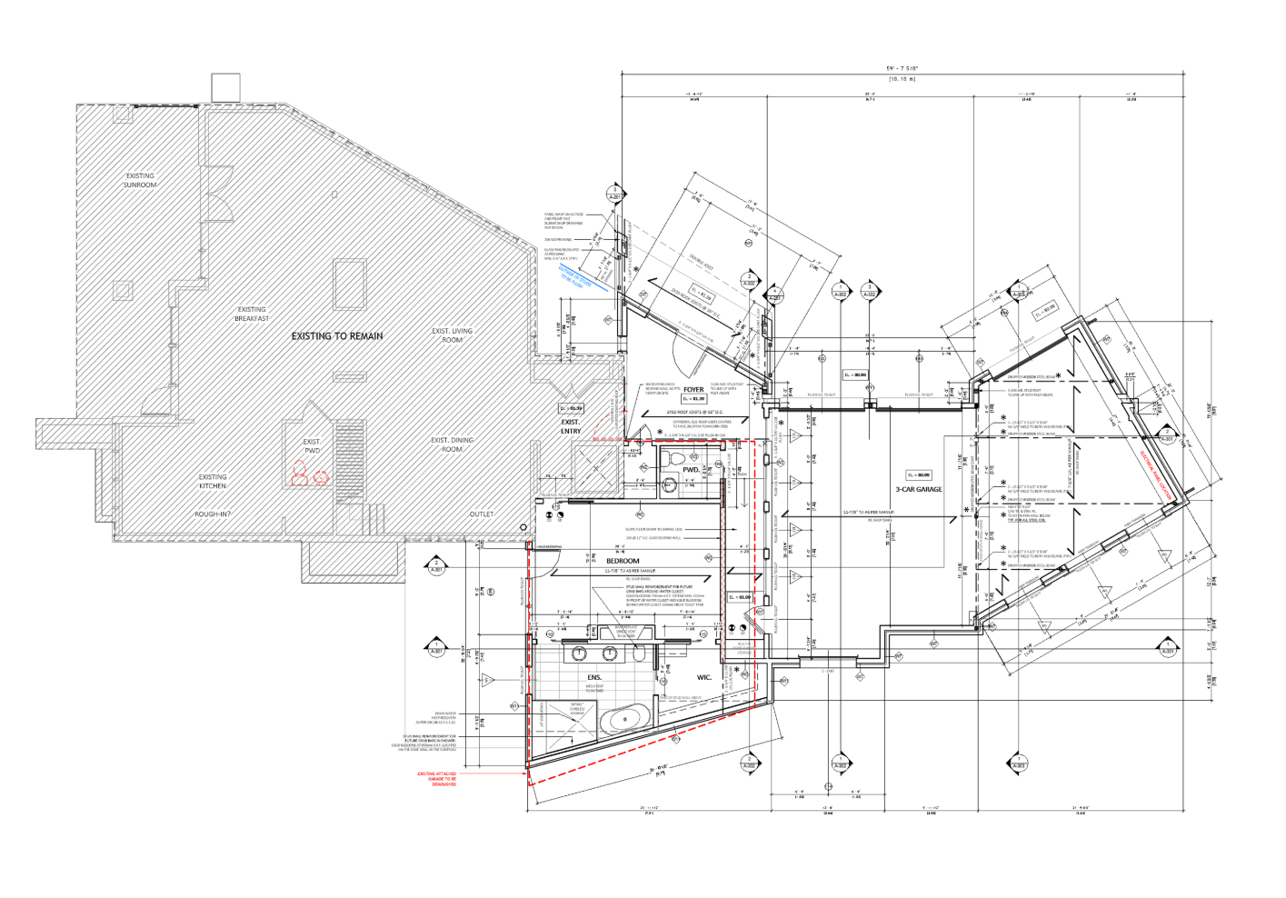
Architectural floor plan of a residential house showing rooms, walls, doors, windows, and measurements.

During construction